Our MEPF BIM Services deliver fully coordinated and data-rich models that integrate Mechanical, Electrical, Plumbing, and Fire Protection systems into a unified digital environment. By leveraging BIM technology, we ensure clash-free coordination, optimized design, and precise documentation that supports smooth construction workflows and efficient project delivery.
MEPF BIM Services help coordinate mechanical, electrical, plumbing, and fire protection systems within a single intelligent 3D model. Our team provides advanced MEPF BIM modeling services using Revit and BIM coordination workflows to detect clashes, optimize system routing, and improve construction efficiency for complex building projects.
Our Mechanical BIM Modeling process involves developing detailed and coordinated 3D models of HVAC systems, including ductwork, piping, and equipment layouts. We ensure optimal routing and spatial coordination with architectural and structural systems to eliminate design conflicts.
- 3D modeling of HVAC ducting, piping, and equipment.
- Integration with structural and architectural disciplines.
- Clash detection and resolution using Navisworks or Revit tools.
- Equipment placement with maintenance access clearances.
- Model-based quantity take-offs and airflow verification.

We provide Mechanical Shop Drawings extracted directly from the coordinated BIM model to ensure fabrication accuracy and compliance with project standards.
- HVAC layout drawings with tagging and dimensioning.
- Duct fabrication drawings with insulation and hanger details.
- Equipment connection and installation details.
- BOQ/BOM generation from BIM data.
- Drawings aligned with project and client-specific templates.
Our Electrical BIM Modeling service covers complete power, lighting, and ELV systems with accurate equipment placement and routing. The models are developed to maintain spatial coordination and support load analysis and circuit management.
- Modeling of power, lighting, and low-voltage systems.
- Containment routing and equipment coordination.
- Embedded load, circuit, and voltage data.
- Coordination with architectural and MEP services.
- Clash detection and report generation.

We generate Electrical Shop Drawings that provide a clear representation of all electrical layouts, ensuring accurate installation and easy coordination on-site.
- Lighting and power layout drawings with circuit references.
- Cable tray and conduit routing details.
- Panel board, switchgear, and circuit schedules.
- Cable length and material take-offs.
- Auto-updating sheets consistent with BIM revisions.
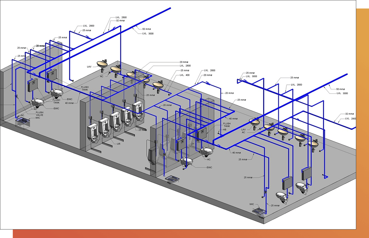
Our Plumbing BIM Modeling includes detailed 3D representation of all sanitary, water supply, and drainage systems with complete hydraulic coordination. We ensure efficient pipe routing, slope management, and system connectivity throughout the project.
- 3D modeling of water supply, drainage, and vent systems.
- Pump, sump, and tank modeling with connection details.
- Integration with structural and architectural layouts.
- Gravity and pressure pipe routing coordination.
- Clash-free model validated through BIM coordination tools.

Our Plumbing Shop Drawings are developed from BIM data to provide accurate installation documentation and precise quantity estimation.
- Water supply and drainage layout drawings.
- Fixture and fitting tagging with legends and notes.
- Piping schematic diagrams and isometric drawings.
- BOQ generation for pipes, fittings, and accessories.
- Drawings standardized per client or project templates.
MEPF BIM modeling services involve creating coordinated 3D models for mechanical, electrical, plumbing, and fire protection systems within a building. These models help engineers detect clashes between systems and structural elements before construction begins, reducing errors, saving time, and improving project coordination.
Our Fire Protection BIM Modeling covers sprinkler, hydrant, and suppression systems developed in accordance with NFPA and local safety codes.
We coordinate the complete fire network within the BIM environment to ensure maximum coverage and compliance.
- 3D modeling of sprinkler and hydrant systems.
- Accurate pipe routing, coverage zones, and clearance checks.
- Integration with ceiling, HVAC, and structural layouts.
- Code-based spacing and performance validation.
- Clash detection and compliance verification.

Our Fire Shop Drawings deliver complete documentation for fabrication, installation, and compliance verification, directly extracted from the BIM model.
Structural BIM modeling integration ensures that mechanical, electrical, plumbing, and fire protection systems are properly coordinated with structural elements such as beams, columns, slabs, and foundations. This coordination improves installation accuracy, reduces clashes, and helps engineers plan construction more efficiently.
- Fire-fighting layout plans and riser diagrams.
- Sprinkler head placement and zoning details.
- Equipment, valve, and pump schedules.
- Quantity take-offs for pipes, fittings, and accessories.
- Consistency maintained with project CAD/BIM standards.
Frequently Asked Questions – MEPF BIM Services
MEPF BIM Services involve creating coordinated 3D models for mechanical, electrical, plumbing, and fire protection systems within building projects.
MEPF BIM modeling is commonly performed using tools such as Revit, Navisworks, and other BIM coordination software.
MEPF BIM helps detect clashes between building systems, improves coordination between disciplines, and reduces construction errors.
Yes, we provide BIM services in Ahmedabad and across India for commercial, industrial, and infrastructure projects.




